明るく開放的な校舎には
毎日を快適に過ごすための細やかな工夫が施されています。
毎日を快適に過ごすための細やかな工夫が施されています。
PHOTO GALLERYフォトギャラリー
調理示範室
-
図書室
アクアリウム
-
学習カウンター
カフェテリア
講堂
星の庭
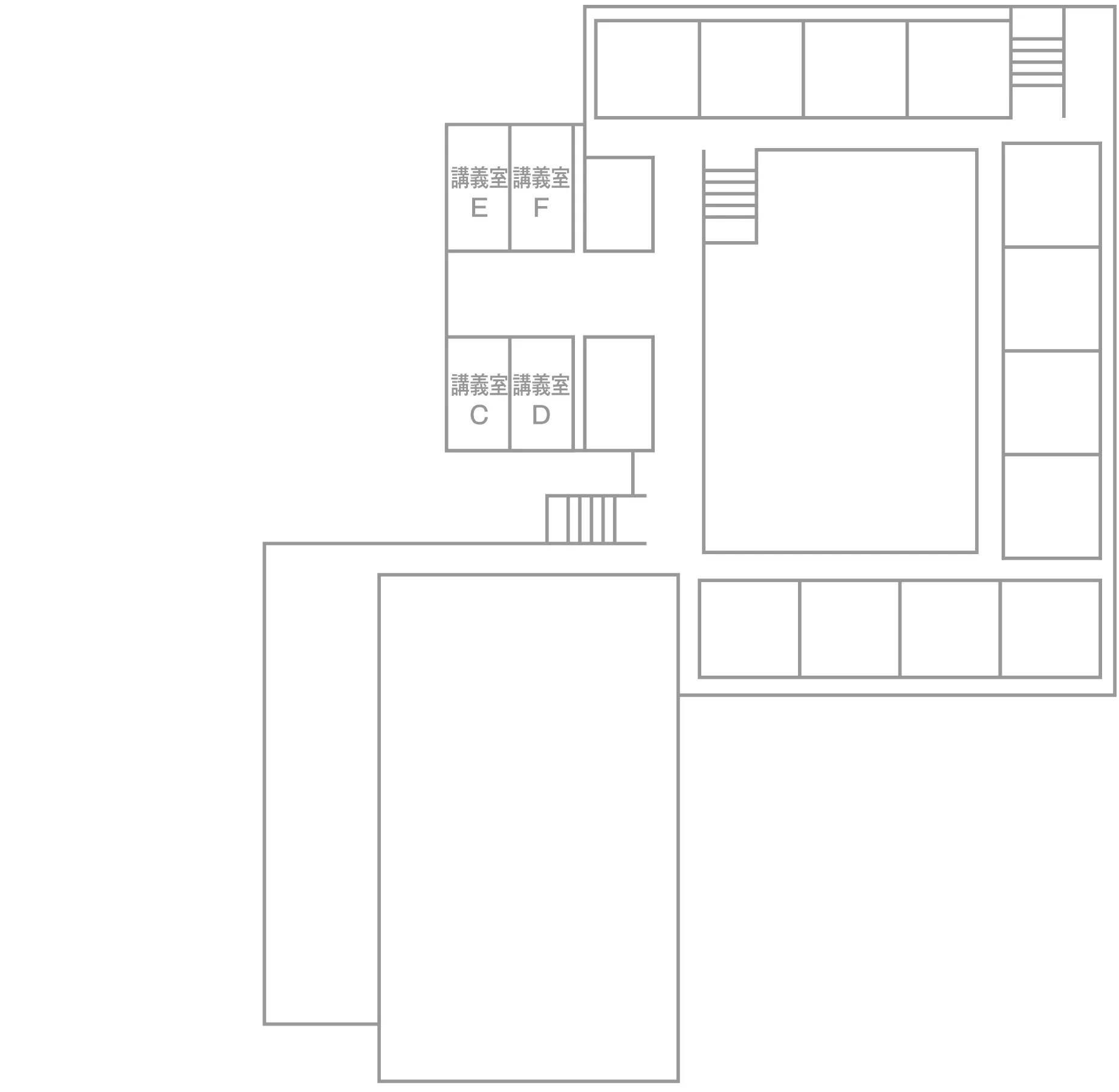
MAP
部分をクリックしてみてね!

- 調理示範室
- 「食」は体づくりの基本として、本校では食育を大事にしています。調理示範室は、実習前に先生が手本を示す場所。白と赤を基調にした個性的な円形教室は、本校の食育のシンボルでもあります。

- 正面玄関
- エントランスホールには部活動の優勝旗、トロフィー、賞状などが飾ってあります。剣道、陸上、ソフトテニス、新体操、バスケットボール部等多くの部活がインターハイ等の全国大会で活躍しています。

- 和の庭
- 平成15年に寛仁親王がご来校記念でお手植えされた松が中学棟の和室の窓を開けると見ることが出来ます。紅葉、アジサイ、竹など様々な植物が植えてあり季節の変化を感じる和風庭園になっています。
- メインアリーナ・サブアリーナ
- 4つの体育施設(メインアリーナ、サブアリーナ、武道場、多目的室)からなる、空調設備を完備した新体育館。メインアリーナはバスケットコートが2面とれる他、トレーニングルームなども備えています。吹抜けや中庭を各所に設けた共有空間を中心に展開し、光、風、緑を感じることができる快適な環境で体育の授業や部活動に利用されています。

- 水仙の丘
- 水仙の丘を上がるとグランドまで見通すことができ、気持ちのいい風が吹き抜けます。生徒昇降口の前の花壇には同窓会から寄贈された本校の校章にもなっている日本水仙が植えられています。

- 学習カウンター
- 教務室(職員室)に近接したホワイエの一角に学習カウンターを40席設けています。授業の合間や放課後にちょっと先生に質問したい時など、この学習カウンターが便利です。

- 礼法・和室
- 日本の伝統を生かした本格的な作りです。茶道や華道などの授業を通して日本の伝統文化を学ぶ中で、礼儀作法や美しい所作を学びます。また、筝曲部の練習場所にもなっています。
- 講堂
- 人間教育・心の教育を行う場として、開校時から大切にされている中村ならではの施設です。学校行事や芸術文化関連の催しを行います。2階~4階まで吹き抜けのフロアは、約1600名が収容できます。

- ホワイエ1
- 講堂入口前の全面ガラス張りになっている明るい日差しが差し込む空間です。学校説明会や入学式などのイベントでは、この空間が、受付場所になったりします。ここからは水仙の丘が一望できます。
- メインアリーナ・サブアリーナ
- 4つの体育施設(メインアリーナ、サブアリーナ、武道場、多目的室)からなる、空調設備を完備した新体育館。メインアリーナはバスケットコートが2面とれる他、トレーニングルームなども備えています。吹抜けや中庭を各所に設けた共有空間を中心に展開し、光、風、緑を感じることができる快適な環境で体育の授業や部活動に利用されています。

- 化学実験室
- 中学理科実験室、物理実験室、化学実験室、生物実験室は、それぞれの授業の特性に応じた設備や器具が配置されています。チョークを使わないガラス黒板に直に映写できるプロジェクターも備え、わかりやすい授業が行なわれます。

- 星の庭
- 校舎の3階にある北側の空中庭園です。休み時間におしゃべりしたり食事したりできる、開放的なコミュニティスペース。ベンチには月の庭と同じく星座を模った石が埋め込んであります。校舎の至るところに緑があるので気持ちを和ませてくれます。

- 月の庭
- 校舎の3階にある南側の空中庭園です。休み時間に、おしゃべりしたり食事したりできる、開放的なコミュニティスペースです。ベンチには星の庭と同じく星座を模った石が埋め込んであります。1年生から3年生までの教室が見渡せます。

- アクティブ・ラーニング室
- 学習シーンに応じて、グループ学習やプレゼンテーションなどスペースを柔軟に変更できるフレキシビリティな教室です。プロジェクターやZoom等を活用し、海外の学校や外部との意見交換などコミュニケーションが図れる教室です。
- メインアリーナ・サブアリーナ
- 4つの体育施設(メインアリーナ、サブアリーナ、武道場、多目的室)からなる、空調設備を完備した新体育館。メインアリーナはバスケットコートが2面とれる他、トレーニングルームなども備えています。吹抜けや中庭を各所に設けた共有空間を中心に展開し、光、風、緑を感じることができる快適な環境で体育の授業や部活動に利用されています。

- 生物実験室
- 中学理科実験室、物理実験室、化学実験室、生物実験室は、それぞれの授業の特性に応じた設備や器具が配置されています。チョークを使わないガラス黒板に直に映写できるプロジェクターも備え、わかりやすい授業が行なわれます。

- 音楽室1
- 2室ある音楽室は防音設備が施され、思いっきり大きな声を出しても大丈夫。ピアノ練習室も備えています。
FOOD EDUCATION中村学園の食育
カフェテリア
数多くの管理栄養士を輩出した中村学園監修のもと、生徒たちの食を通じた健康づくり・体づくりをサポートします。栄養バランスがとれた日本の食膳形式を取り入れた「一汁三菜ランチ」や、活動量の多い部活動生が十分なエネルギーを確保できるよう開発された「ジュニアアスリートランチ」、他にもおいしいメニューを揃え、育ち盛りの生徒の健康を気遣い、栄養バランスを考えた美味しいメニューを提供しています。 カフェテリアランチメニュー ≫ 中学スクールランチ ≫
ランチ紹介
-
一汁三菜ランチ
-
チーズカレー
-
担々麺
-
ロコモコ
PICK UPピックアップ施設

- 講堂
- 人間教育・心の教育を行う場として、開校時から大切にされている中村ならではの施設です。学校行事や芸術文化関連の催しを行います。2階~4階まで吹き抜けのフロアは、約1600名が収容できます。

- 学習カウンター
- 教務室(職員室)に近接したホワイエの一角に学習カウンターを40席設けています。授業の合間や放課後にちょっと先生に質問したい時など、この学習カウンターが便利です。

- 教室
- 備え付けのプロジェクターが設置されており、スクリーンとしても使用できるガラス黒板を採用。木製のロッカーや本棚があり、落ち着いた雰囲気で学習に取り組めます。

- メインアリーナ
- バスケットコートが2面とれるアリーナの他、トレーニングルームなどを備えています。冷暖房完備なので、快適な環境で体育の授業や部活動ができます。




























